简体   |   English 联系电话:0373-3553177  |   企业邮箱
  • 电缆桥架冷弯生产线
  • 电缆桥架冷弯生产线
  • 电缆桥架冷弯生产线
电缆桥架冷弯生产线
所属类别:电气行业
欢迎拨打咨询热线:0373-3553177
详细说明

生产线布置图

上料平台—开卷机—伺服送料—冲孔冲压—辊压成型—切断—翻转送料

1586139360629742

设备概述:

1.双悬臂齿轮传动装置,机器的制造宽度可调整持续,可改变型材的宽度和高度。

2.牌坊20道成型,主机由交流电机,减速机,牌坊,变速箱,水平调节系统和轧制模具。机座和传输采用焊接结构,具有硬度的处理,轧辊材质为45#钢。

3.辊压成型工艺是由德国COPRA软件制作;进行有限元工艺分析和检查。提高线速度,降低成形阻力。从而保证设备的准确度和稳定性。


技术参数:

  

电缆桥架生产线
电缆桥架设备

微信截图_20200819143516

电缆桥架冷弯成型生产线成型部分


IMG_8691_副本

IMG_0017_副本


电缆桥架冷弯成型生产线传动部分


未标题-2


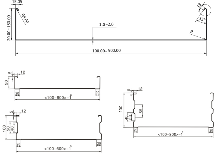
电缆桥架板型图


DSC_3654-1_副本

5

6


IMG_0033-1_副本


电话:0373-3526651 办公室
邮箱:2241601823@qq.com
地址:郑洛新国家自主创新示范区核心区——新乡高新技术开发区新一街369-1号
  • 联系人:
  • 电 话:
  • 地 址:
  • 邮 箱:
  • 备 注:
  • 验证码:

微信扫一扫关注天丰 抖音扫一扫关注天丰
版权所有 河南华体会网页版登录入口有限公司   地址:郑洛新国家自主创新示范区核心区——新乡高新技术开发区新一街369-1号   邮编:453000   企业邮箱   备案号:豫ICP备11021497号    【免责声明】

豫公网安备 41070202000242号